8019 Oakleaf Circle

$199,500
Zimmer
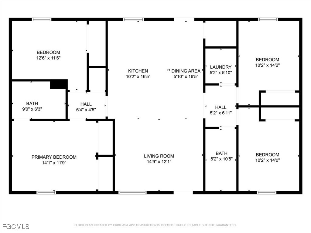
4
Bäder
2.00
Ft2
1,511
Grundstücksgröße ha
0.27
Baujahr
2018
Heizung
Central,Electric
Dachausführung
Shingle
8019 Oakleaf Circle
Labelle, Florida 33935
United States
Subdivision: PORT LABELLE
Landkreis: Hendry
Kauf/Miete: For Sale
Objekt-ID: 2025001194
Aktualisiert: Mittwoch, 15. Oktober 2025 07:04
Kategorie: Single Family
Eingetragen von Dalton Wade Inc
Motivated Seller!! Charming Country Haven: Escape to a serene slice of paradise with this 4-bedroom, 2-bathroom handyman jewel, sprawling across a generous 1,500+ square feet of cozy, heartwarming living space! Looking for your dream home with endless potential? This charming fixer-upper is a hidden gem waiting for your personal touch! Nestled in a desirable neighborhood, this property offers a spacious layout, ample natural light, and a large lot perfect for outdoor enthusiasts. While it needs TLC, the solid bones and classic character provide a fantastic canvas for your vision—whether it’s modern upgrades or a cozy restoration. Priced to sell, this is a rare opportunity to build equity and create a home that’s uniquely yours. Great for first time homebuyers, fix & flip or investors. Don’t miss out—schedule a showing today!
Generelle Ausstattung
Sonderausstattung
Aussenausstattung
Landscape Amenities
Community Amenities
Appliance Amenities