3081 Wakefield Lane
$1,175,000- Zimmer
- 3
- Bäder
- 3.00
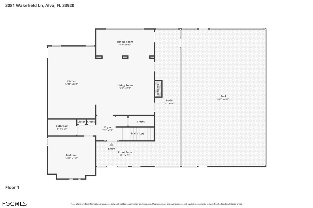
- Ft2
- 2,322
- Grundstücksgröße ha
- 6.20
- Baujahr
- 2005
- Heizung
- Central,Electric
- Dachausführung
- Metal
Virtueller Rundgang
3081 Wakefield Lane
Alva, Florida 33920
United States
Alva, Florida 33920
United States
Subdivision: ALVA
Landkreis: Lee
Kauf/Miete: For Sale
Objekt-ID: 2026016633
Aktualisiert: Mittwoch, 15. April 2026 10:24
Kategorie: Single Family
Eingetragen von RE Florida Homes
Stay tuned! More photos coming soon!
This beautifully renovated two-story estate is set on 6.2 acres along the scenic Bedman Creek, surrounded by a breathtaking canopy of mature oak trees. Located on a quiet dead-end road, this oak hammock property delivers the privacy of your own peaceful oasis buyers are looking for.
The home has been fully renovated boasting a totally redesigned kitchen and bathrooms, new flooring, and has been freshly painted on both interior and exterior. The master suite features a beautifully designed Closet Factory closet and dual vanities in the bathroom. The redesigned kitchen features a gas cooktop with built-in griddle, commercial grade hood, double wall ovens, all-new cabinetry featuring glass view uppers, a huge island/bar, and beautiful granite countertops; all offering both function and style. Bathrooms have been completely upgraded with new fixtures, vanity, mirrors, and tile, creating a clean, modern finish throughout the home. Home also features built-in shelving in the great room, and a den/study/office area perfect for working from home.
Major improvements include a new whole-home generator, whole-home RO system, and brand new Tough Shed on concrete pad, painted to compliment the house; all providing added space, reliability, and convenience. The outdoor space is equally impressive, with a refinished saltwater pool, a newly resealed pavered pool deck, and a brand-new screen enclosure. Whether you are entertaining family, guests, or simply embracing the tranquility of nature sitting on the fully enclosed wrap around porch; it is the perfect space for enjoying the natural surroundings year round.
A rare opportunity to own a private, fully updated home on acreage, with creek frontage, in a truly serene country setting.
